A Sunday Times article on September 6 highlighted the issue of ‘shoebox living’, illustrated by a plan of six ‘flats’ in Southampton in a conversion from a former gas showroom.
Developers are exploiting planning laws to convert empty banks, takeaways and barbers into tiny flats, causing fears Britain’s high streets are becoming modern slum housing. Relaxed planning laws and the impact of the coronavirus on the high street have led to a flood of applications to convert shops into homes under so-called permitted development rights (PDRs), which until recently had mainly been used for office conversions.
Since 2013 ‘permitted development rights’ have let developers bypass the requirement to apply for planning permission when turning office blocks into flats. Developers may not transform the outside appearance but have automatic rights to change how the property is used. This was expanded to include shops, bookmakers and launderettes in 2016, before fast-food outlets were added last year. Government data suggests 60,399 homes have already been created in this way and with the ludicrous housing numbers set for Havant, and the empty retail units in the town centre, we could well be next.
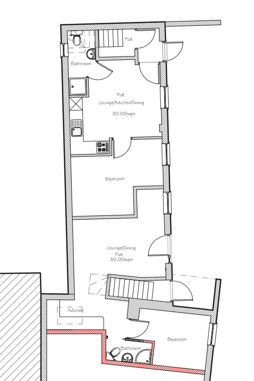
The Sunday Times article set a useful reference point by stating that the average car parking space in Britain is about 12 square metres (m2). This caused us to start looking at the sizes of new flats which have already been approved by Havant Borough Council, starting with the flats which are already part sold at 40 North Street on the site of the former Trentham art gallery and workshop.
Taking the ground floor flats as an example, there are currently two compact one bedroom flats, each with a floor area of 30 m2.
It’s not hard to imagine that the two currently unoccupied retail spaces at the front of that building will at some point be turned into another two ‘spacious’ flats under ‘Permitted Development Rights’ (PDR).
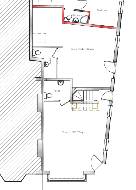
Across the road from 40 North Street, the old North Street Arcade has also been in our sights. Of the 29 flats currently approved for construction there, the largest at 70m2 contrast with the smallest at 37m2.


Meanwhile, ‘north of the tracks’ at the Wessex site in New Lane, construction has been motoring ahead during lockdown and the flats being built are close to completion. The smallest of these starts at a relatively spacious 50m2, while the largest units squeeze two double bedrooms and two bathrooms into 78m2.

While en-suite shower rooms to the main bedroom in a two bed flat presumably attract higher market prices, it feels that a single family bathroom and more living space in a flat would make for a better living space. But then again, since we suspect that many of these flats will be ‘buy to let’ properties, the two bedroom / two bathroom ones could well morph into shared occupancy properties.
(Perhaps I’ve been watching too many episodes of ‘Homes under the Hammer’ during lockdown!)




